Exclusive apartment 83.5m2 with 2 bathrooms and air conditioning – Krowodrza, Biprostal area
Basic parameters
- Date added: Added 1 month ago
- Category: For sale
- Type: Flats, Apartments
- Total rooms: 3
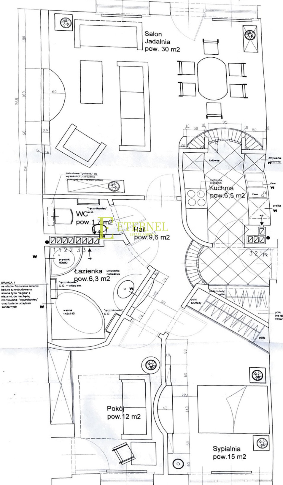
- Area: 83.5 m²
- Floor: 4
- Availability: Teraz
- Market: Rynek wtórny
Description
-
Description:
Property: For sale exceptional apartment of 83.5 m² on 4th floor of 5-story building with quiet elevator in Biprostal building area in Krowodrza. Property available immediately. Secondary market. Possibility to purchase individual 17 m² garage with electric gate (entrance from back of building) for 199 000 PLN.
Apartment condition: Apartment in high standard, fully furnished with complete equipment, furniture and decorations. Apartment consists of spacious and sunny living room with dining area (south balcony), bedroom, guest room (study/bedroom), two bathrooms (one with bathtub, shower and sink; second with toilet and sink) and kitchen fully equipped with household appliances: washing machine, dishwasher, gas/electric cooktop, microwave, oven, refrigerator. Apartment mainly in southern exposure. Additionally air conditioning and external electric shutters. Nets on balconies. South balcony.
Building condition: Residential block from 2004 in very good condition with quiet elevator. Anti-burglary shutters, monitoring/cameras ensuring security. MPEC district heating.
Location: Center of Krakow's Krowodrza - approximately 1400 m (20 minutes walk) to Main Square. Shops, banks, post office, schools, parks, gyms nearby. Tram and bus stops 200 m from building.
Price: 1 949 000 PLN (23 481.93 PLN/m²) + rent 1300 PLN
Garage: 199 000 PLN (17 m² with electric gate)
This offer is for informational purposes only and does not constitute a commercial offer as defined in Article 66 §1 of the Polish Civil Code. According to the Real Estate Management Act, Chapter 2, Article 180 point 3, a standard brokerage agreement must be signed prior to the property viewing.
Additional information
- Amenities:
Location
- Neighborhood: Krowodrza
Building Details
- Type of development: Apartment block
- Purpose of the facility: Hotel